REA Dawson (Tullow)

Main Street, Main Street, Bunclody, Y21 XN28

Investment Property For Sale

€465,000

Print additional images & map (disable to save ink)

Photo 1 of Main Street, Main Street, Bunclody

Telephone:

(059) 915 1142

View Online:

www.realestatealliance.ie/1009297

Key Information

Address Main Street, Main Street, Bunclody, Y21 XN28
Price Last listed at Asking price €465,000
Style Investment Property
Status Sale Agreed
PSRA License No. 001015
   

Additional Information

REA Dawson offer for sale this landmark commercial/residential property, occupying a prominent location in the heart of Bunclody town with dual frontage onto Main Street and The Mall Bunclody, Co. Wexford.

This property is presented to the market in good condition throughout and benefits from a fully let ground and first floor (tenant unaffected), with storage or potential for a one-bedroom apartment located on the second floor.

Location
Bunclody is a vibrant market town located on the N80, between Carlow and Enniscorthy. With an urban population of approximately 2,000, the town also serves a large and prosperous agricultural hinterland. The building currently a pharmacy outlet is surrounded by a mix of established businesses including a newsagent, supermarket, a selection of public houses, and other retail outlets.

Key Features;

  • Town centre location.
  • Dual street frontage.
  • Ground and first floor leased until 2035.
  • Strong covenant currently operation as a pharmacy shop.
  • Parking adjacent.
  • Lease details available on request.

Description
This is a high-profile, end-of-terrace unit with dual street frontage.

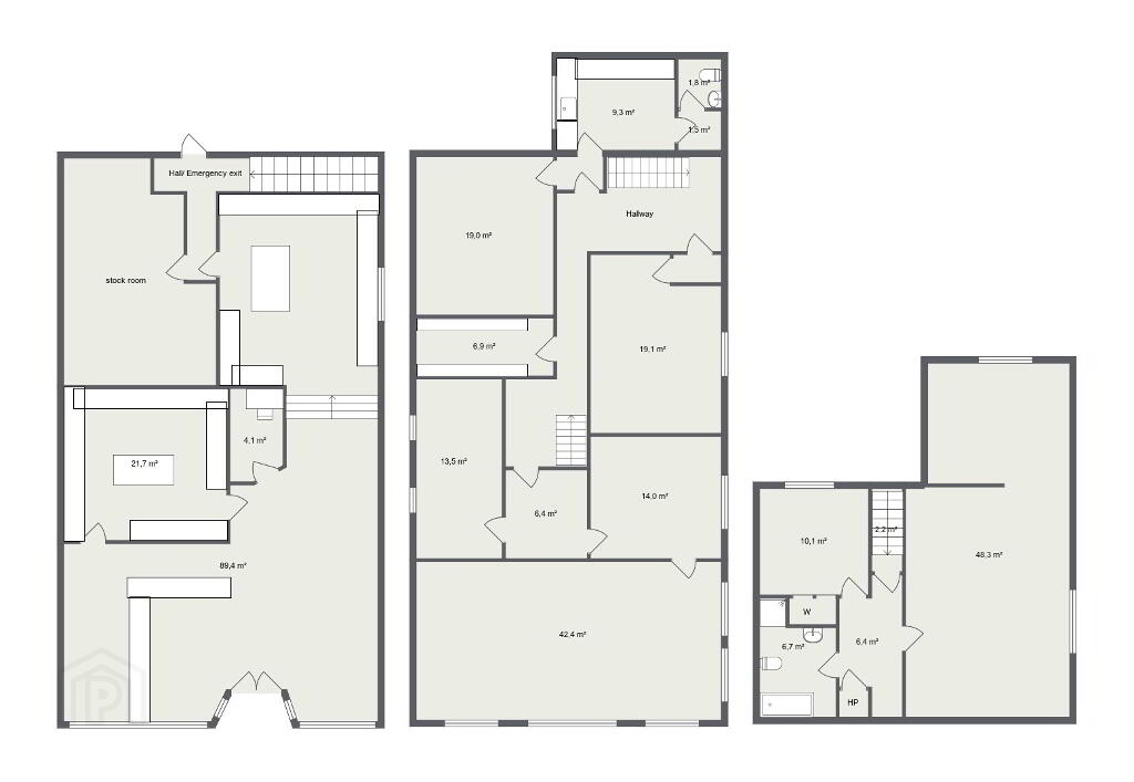
Accommodation Comprises:

L-Shaped Pharmacy Retail Premises

Consultancy Room

Dispensary

Stockroom

First Floor

Former Gift Gallery (now used for storage)

Filing Room

Office/Storage

Canteen with WC and WHB

Separate Bathroom

Storage/Stock Room

Third Floor

Open-plan living/kitchen area

Bedroom with built-in wardrobe

Hot press

Bathroom with electric shower.

For full details and appointment to view contact selling agents.

 

  • REA Dawson

    REA Dawson (Tullow)

    (059) 915 1142

Photo Gallery

Photo 1 of Main Street, Main Street, Bunclody Photo 2 of Main Street, Main Street, Bunclody Photo 3 of Main Street, Main Street, Bunclody Photo 4 of Main Street, Main Street, Bunclody Photo 5 of Main Street, Main Street, Bunclody Photo 6 of Main Street, Main Street, Bunclody Photo 7 of Main Street, Main Street, Bunclody Photo 8 of Main Street, Main Street, Bunclody Photo 9 of Main Street, Main Street, Bunclody Photo 10 of Main Street, Main Street, Bunclody Photo 11 of Main Street, Main Street, Bunclody Photo 12 of Main Street, Main Street, Bunclody Photo 13 of Main Street, Main Street, Bunclody Photo 14 of Main Street, Main Street, Bunclody Photo 15 of Main Street, Main Street, Bunclody Photo 16 of Main Street, Main Street, Bunclody Photo 17 of Main Street, Main Street, Bunclody Photo 18 of Main Street, Main Street, Bunclody Photo 19 of Main Street, Main Street, Bunclody Photo 20 of Main Street, Main Street, Bunclody Photo 21 of Main Street, Main Street, Bunclody Photo 22 of Main Street, Main Street, Bunclody Photo 23 of Main Street, Main Street, Bunclody Photo 24 of Main Street, Main Street, Bunclody Photo 25 of Main Street, Main Street, Bunclody Photo 26 of Main Street, Main Street, Bunclody Photo 27 of Main Street, Main Street, Bunclody

Location

Visit www.realestatealliance.ie for further details.