REA Donohoe Spring (Ballyconnell)

Corlough Corlough, H14 Y322

1 Bed Bungalow For Sale

€85,000

Print additional images & map (disable to save ink)

Photo 1 of Corlough, Corlough

Telephone:

(049) 952 7560

View Online:

www.realestatealliance.ie/1037498

Key Information

Address Corlough Corlough, H14 Y322
Price Last listed at Guide price €85,000
Style Bungalow
Bedrooms 1
Receptions 1
Bathrooms 1
Heating Electric Storage Heaters
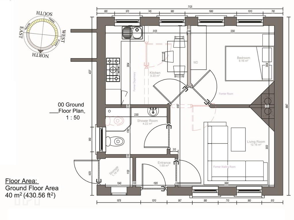
Size 40 m²
BER Rating
Status Sale Agreed
PSRA License No. 003483
   

Additional Information

REA Donohoe Spring bring to the market this Fully Serviced C. 40 sqm Single Storey Cottage on Mature, Wooded C. 0.55 Acre Site.  Full Planning Permission.  Plans Available & with room to extend.  Peaceful & Scenic Location. Under 15 mins to Ballinamore & Ballyconnell.

 

This former health centre currently extends to C. 40 sqm & is laid out as follows;

Entrance Porch (1.1 x 1.2),

Room 1 (3.7 x 3.0) with open fireplace,

W.C. (2.3 x 1.8),

Room 2 (3.0 x 4.8) with open fireplace

Former Dispensary (3.0 x 1.2) with sink.

Accessed externally is a store room (1.2 x 1.1).

 

Full Planning Permission (FPP) is now granted (Reference: 2560589) for conversion to a 1 bed cottage to comprise; Entrance hall, Living room with OFP, Bedroom 1, Kitchen, Shower room & Storeroom.

 

Full Plans available – Can also be extended a further 40 square metres to rear.   Should also qualify for the Vacant Property Grant of up to €50,000 & SEAI grants.

 

The property requires renovation and modernisation but has excellent potential for those seeking an compact & quirky, easy to run residence, holiday home/rural retreat with holiday let potential.

 

Block built with a plaster dash finish, slate roof & uPVC double glazed windows. BER: G.  Serviced by; On-site septic tank, Corlough Group Water Scheme connection & Electric Storage Heating. 

 

Comprising Folio’s CN8948F & CN10802F, the C. 0.55 acre site is bounded by fencing, front wall, mature trees & hedgerow. Most of the site is planted with forestry but the new owners could alter & landscape as they see fit. There is ample off-street parking along the front of the site.

 

Currently designated as a commercial property but submitted for full planning permission to change to residential & being sold subject to same. Plans have been prepared & are available for inspection. The property requires renovation and modernisation but has excellent potential for those seeking an compact & quirky, easy to run residence, holiday home/rural retreat with holiday let potential.

 

Located in peaceful rural area C. 10 min drive to amenities in Swanlinbar & under 15 mins  drive to Ballinamore & Ballyconnell. Approx. 30 min to Enniskillen & 40 mins to Cavan Town. GPS: 54.12683, -7.773860.

 

Viewing Highly Recommended & By Appointment Only.

BER details

BER Rating:

BER No.: 800887481

Energy Performance Indicator: Not provided

  • REA Donohoe Spring

    REA Donohoe Spring (Ballyconnell)

    (049) 952 7560

Photo Gallery

Photo 1 of Corlough, Corlough Photo 2 of Corlough, Corlough Photo 3 of Corlough, Corlough Photo 4 of Corlough, Corlough Photo 5 of Corlough, Corlough Photo 6 of Corlough, Corlough Photo 7 of Corlough, Corlough Photo 8 of Corlough, Corlough Photo 9 of Corlough, Corlough Photo 10 of Corlough, Corlough Photo 11 of Corlough, Corlough Photo 12 of Corlough, Corlough Photo 13 of Corlough, Corlough Photo 14 of Corlough, Corlough Photo 15 of Corlough, Corlough Photo 16 of Corlough, Corlough Photo 17 of Corlough, Corlough Photo 18 of Corlough, Corlough Photo 19 of Corlough, Corlough Photo 20 of Corlough, Corlough Photo 21 of Corlough, Corlough Photo 22 of Corlough, Corlough Photo 23 of Corlough, Corlough Photo 24 of Corlough, Corlough Floorplan 1 of Corlough, Corlough Floorplan 2 of Corlough, Corlough Photo 25 of Corlough, Corlough Floorplan 3 of Corlough, Corlough

Location

Visit www.realestatealliance.ie for further details.