REA Dooley Group (Charleville)

Freemount Village Charleville, P56 F773

Building Plot For Sale

Guide price €160,000

Print additional images & map (disable to save ink)

Photo 1 of Freemount Village, Charleville

Telephone:

(063) 30884

View Online:

www.realestatealliance.ie/1038426

Key Information

Address Freemount Village Charleville, P56 F773
Price Guide price €160,000
Land type Building Plot
Size 0.62 acres²
Status For sale
PSRA License No. 003411

Features

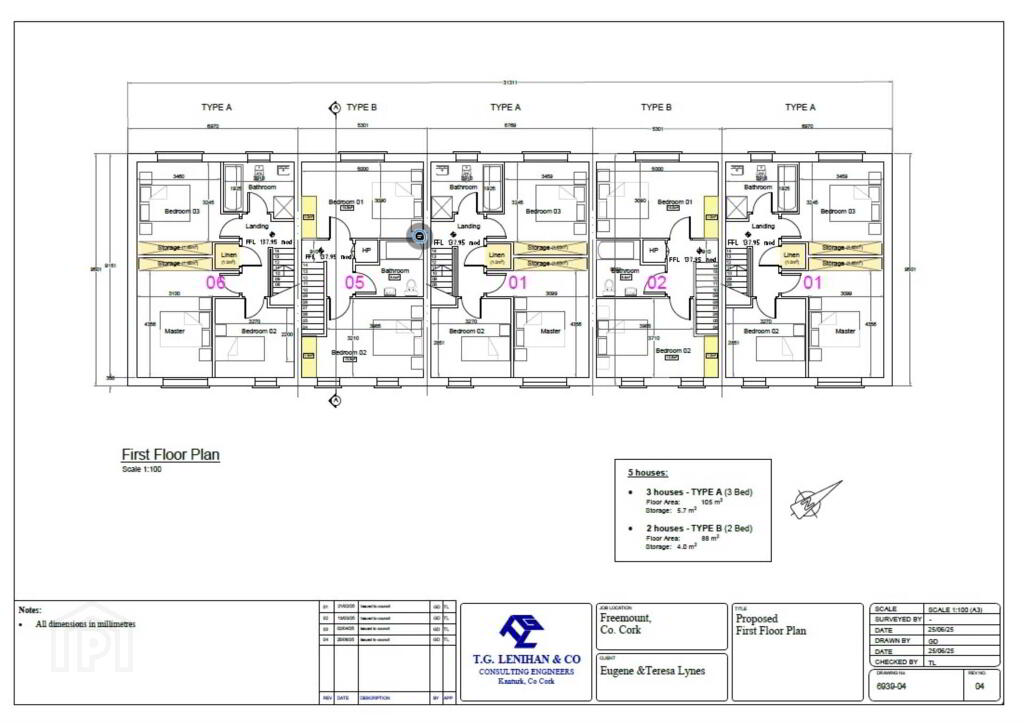
  • Full planning permission for 5 residential units
  • 2 no. x 2 bed houses & 3 no. x 3 bedroom houses
  • Planning ref 25/04694
  • Mains services
  • Ready to go site
  • Located on the perimeter of Freemount village
  • Located a short drive from the towns of Charleville & Kanturk
  • Within easy commute of Cork and Limerick Cities

Additional Information

REA Dooley Group are delighted to bring to the market this residential site which has full planning permission for 5 no. residential units under planning reference No. 25/04694.

The site extends to 0.254 ha / 0.62 acres and permission has been granted for a residential development comprising of the construction of 5 no. residential units. The residential mix is as follows: 2 no. 2 bedroom town houses and 3 no. 3 bedroom town houses. The proposed development will also include associated site development works including vehicular access, car parking, footpaths, foul and storm drainage networks, water-mains, bin storage, public lighting and boundary wall.

The site is conveniently located on the perimeter of Freemount village, just a short drive from Charleville & Kanturk as well as being within easy commuting distance of Cork and Limerick cities.

Planning conditions, maps & plans available

Directions
P56 F773

Notice
Please note we have not tested any apparatus, fixtures, fittings, or services. Interested parties must undertake their own investigation into the working order of these items. All measurements are approximate and photographs provided for guidance only.
  • REA Dooley Group

    REA Dooley Group (Charleville)

    (063) 30884

Photo Gallery

Photo 1 of Freemount Village, Charleville Photo 2 of Freemount Village, Charleville Photo 3 of Freemount Village, Charleville Photo 4 of Freemount Village, Charleville

Location

Visit www.realestatealliance.ie for further details.