REA Brophy Farrell (Newbridge)

2761 Corra Choill Park Prosperous, W91 FH7N

3 Bed Terrace House For Sale

€250,000

Print additional images & map (disable to save ink)

Photo 1 of 2761 Corra Choill Park, Prosperous

Telephone:

(045) 431 327

View Online:

www.realestatealliance.ie/1042104

Key Information

Address 2761 Corra Choill Park Prosperous, W91 FH7N
Price Last listed at €250,000
Style Terrace House
Bedrooms 3
Bathrooms 1
Heating Oil
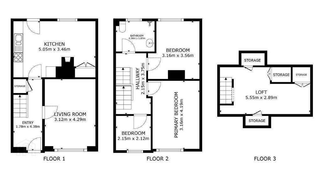
Size 77.76 m²
BER Rating
Status Sale Agreed
PSRA License No. 001230

Features

  • Extends to 77.76 Sq. Metres / 837 Sq. Feet ( Excluding Attic ) .
  • Located in established and well-maintained town centre estate close to all town amenities.
  • Oil fired central heating.
  • Large rear garden offering several opportunities subject to planning.
  • Concrete Shed.
  • Front Driveway with street parking also available.
  • Overlooking Green Area.
  • Attic storage.
  • Built in C.1975.

Additional Information

* 3 Bedroom Mid-Terrace Residence. *

REA Brophy Farrell have the pleasure of presenting this 3 Bedroom mid -terraced property to the market.
2761 Corra Choill is located in an established and well maintained town center estate and includes living / sitting room, kitchen ,3 bedrooms and bathroom. There is also attic storage accessible from a staircase off the 2nd floor.
Location is a key factor as it is positioned in a small cul-de-sac in Corra Choill off the R408 Maynooth road and within a 5 minutes' walk of the town centre and the main R403 Clane Road crossroads with Dowlings Pub / Restaurant / Prosperous Pitch and Putt Club, Prosperous Lawn Tennis Club, Coffee shop and Restaurants, Church, School ( Scoil an Linbh Iosa) and Pre-school ( Little Scholars ) located thereof.

Local supermarkets include Londis and Spar and other towns in proximity include Clane (approximately 6 KM) with Dunnes Stores /Aldi / Tesco / Choice, Maynooth (approximately15KM ) ,Allenwood (approximately 7KM ),Caragh (approximately 8KM ) ,Sallins (approximately 9KM) and Naas ( approximately 12 KM ).
Dublin city and suburbs are easily accessible via a frequent town bus service and train services from Sallins with the property providing easy access to both the M4 and M7 motorways.

Other local attractions in the area include the Lullymore Heritage and Discovery Park and the Kildare Maze.

While the property requires modernization. it offers a lot of potential, and it boasts of a large rear garden with several opportunities subject to planning. There is also a large front driveway with street parking also available and is ideally suited to 1st time buyers or anyone seeking to downsize.

Viewing is by appointment with sole selling agents REA Brophy Farrell.

Viewing by appointment only.
The above particulars are issued by REA Brophy Farrell and while every care is taken in preparing particulars they do not hold themselves responsible for any inaccuracies.

  • REA Brophy Farrell

    REA Brophy Farrell (Newbridge)

    (045) 431 327

Photo Gallery

Photo 1 of 2761 Corra Choill Park, Prosperous Photo 2 of 2761 Corra Choill Park, Prosperous Photo 3 of 2761 Corra Choill Park, Prosperous Photo 4 of 2761 Corra Choill Park, Prosperous Photo 5 of 2761 Corra Choill Park, Prosperous Photo 6 of 2761 Corra Choill Park, Prosperous Photo 7 of 2761 Corra Choill Park, Prosperous Photo 8 of 2761 Corra Choill Park, Prosperous Photo 9 of 2761 Corra Choill Park, Prosperous Photo 10 of 2761 Corra Choill Park, Prosperous Photo 11 of 2761 Corra Choill Park, Prosperous Photo 12 of 2761 Corra Choill Park, Prosperous Photo 13 of 2761 Corra Choill Park, Prosperous Photo 14 of 2761 Corra Choill Park, Prosperous Photo 15 of 2761 Corra Choill Park, Prosperous Photo 16 of 2761 Corra Choill Park, Prosperous Photo 17 of 2761 Corra Choill Park, Prosperous Photo 18 of 2761 Corra Choill Park, Prosperous Photo 19 of 2761 Corra Choill Park, Prosperous Photo 20 of 2761 Corra Choill Park, Prosperous Photo 21 of 2761 Corra Choill Park, Prosperous Photo 22 of 2761 Corra Choill Park, Prosperous Photo 23 of 2761 Corra Choill Park, Prosperous Photo 24 of 2761 Corra Choill Park, Prosperous Photo 25 of 2761 Corra Choill Park, Prosperous Photo 26 of 2761 Corra Choill Park, Prosperous Photo 27 of 2761 Corra Choill Park, Prosperous Photo 28 of 2761 Corra Choill Park, Prosperous Photo 29 of 2761 Corra Choill Park, Prosperous Photo 30 of 2761 Corra Choill Park, Prosperous Photo 31 of 2761 Corra Choill Park, Prosperous Photo 32 of 2761 Corra Choill Park, Prosperous Floorplan 1 of 2761 Corra Choill Park, Prosperous

Location

Visit www.realestatealliance.ie for further details.