REA Spratt (Dungarvan)

Meadowlands, Abbeyside, Dungarvan

Site For Sale

Guide price €155,000

Print additional images & map (disable to save ink)

Photo 1 of Meadowlands, Abbeyside, Dungarvan

Telephone:

(058) 42211

View Online:

www.realestatealliance.ie/1045788

Key Information

Address Meadowlands, Abbeyside, Dungarvan
Venue Online Auction - BidNow.ie
Time Dec 12 at 11:00 AM
Guide Price €155,000
Style Site
Size 0.12 acres²
Status For sale
PSRA License No. 001621

Features

  • Prime residential location
  • Full Planning Permission in place, ready to go
  • All main services adjacent to include high speed broadband
  • Design incorporates south west orientation in private garden space
  • Opportunity to buy now and build later
  • https://reaspratt.bidnow.ie/lot/details/165252

Auction Information

Venue Online Auction - BidNow.ie
Time Dec 12 at 11:00 AM

Additional Information

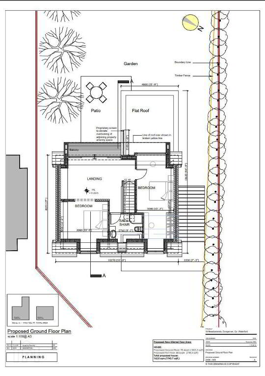
REA Spratt offer for sale by Online Auction Friday 12th December at 11am this prime residential site in the heart of Abbeyside specifically the now established Meadowlands Development. This site is being sold with the benefit of Full Planning Permission (Planning Ref, 24/60795) for a detached dwelling extending to 162sq.m / 1743sq.ft. Proposed accommodation to consist of Ground Floor entrance hallway with wc/whb and utility area off, ground floor bedroom with ensuite off, generous open plan kitchen / breakfast area / lounge with home office area off. First floor generous landing, two further bedrooms and bathroom. This property listing provides a unique opportunity to constructed an Energy Efficient home finished to ones own style and living in a most convenient location within metres of Abbeyside Boardwalk and Beach. Planning Pack and Drawings available by request via info@spratt.ie or 058-42211.


Directions

52.091096033637776, 7.605005489191871

  • REA Spratt

    REA Spratt (Dungarvan)

    (058) 42211

Photo Gallery

Photo 1 of Meadowlands, Abbeyside, Dungarvan Photo 2 of Meadowlands, Abbeyside, Dungarvan Photo 3 of Meadowlands, Abbeyside, Dungarvan Photo 4 of Meadowlands, Abbeyside, Dungarvan Photo 5 of Meadowlands, Abbeyside, Dungarvan Photo 6 of Meadowlands, Abbeyside, Dungarvan Photo 7 of Meadowlands, Abbeyside, Dungarvan Photo 8 of Meadowlands, Abbeyside, Dungarvan Photo 9 of Meadowlands, Abbeyside, Dungarvan Photo 10 of Meadowlands, Abbeyside, Dungarvan Photo 11 of Meadowlands, Abbeyside, Dungarvan Photo 12 of Meadowlands, Abbeyside, Dungarvan

Location

Visit www.realestatealliance.ie for further details.