REA O'Brien Collins (Drogheda)

Market Square House, Irish Street Ardee, A92 K8FP

Redevelopment Opportunity For Sale

Asking price €625,000

Print additional images & map (disable to save ink)

Photo 1 of Market Square House, Irish Street, Ardee

Telephone:

(041) 987 5444

View Online:

www.realestatealliance.ie/1051675

Key Information

Address Market Square House, Irish Street Ardee, A92 K8FP
Price Asking price €625,000
Style Redevelopment Opportunity
BER Rating
Status For sale
PSRA License No. 003766

Additional Information

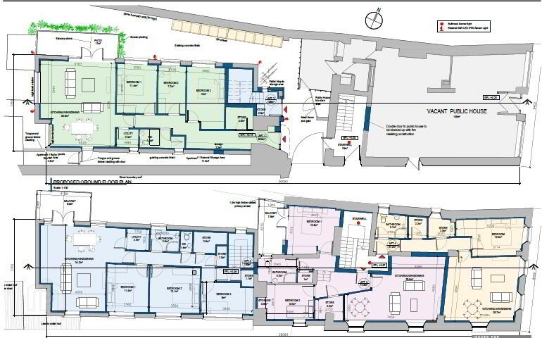
Landmark Town Centre Investment  / Redevelopment Property Ground Floor Commercial & FPP 4 no. large Apartments.

THE PROPERTY – “READY TO GO” INVESTMENT / REDEVELOPMENT OPPORTUNITY

Well-located substantial two storey town centre property occupying a prominent corner position at Market Square. Formerly a licensed premises with restaurant use overhead, this property is vacant and may benefit from the Vacant Property Refurbishment Grant (Croí Cónaithe Towns Fund). As per Planning Ref 2560052, full planning permission was granted on 15.09.2025 to refurbish and secure change of use of the property to provide 4 no. large apartments in addition to the ground floor commercial unit at the front of the building. The total site area of the property is approx. 0.185 hectare / 0.457 acres and the entire is zoned B1 – Town or Village Centre under the terms of the current Ardee Development Plan 2021 – 2027. 

PROPOSED SCHEME:

Ground Floor Commercial: approx 109 sqm / 1,173 sq ft

Ground Floor Apartment No 1 (3 bed): approx 96.9 sqm / 1,043 sq ft

First Floor Apartment No 2 (3 bed): approx 109 sqm / 1,173 sq ft

First Floor Apartment No 3 (2 bed): approx 74.6 sqm / 803 sq ft

First Floor Apartment No 4 (3 bed): approx 57.2 sqm / 616 sq ft

Vacant site (zoned B1) to rear offering potential for further development.

POTENTIAL:

In this instance, given the size of the proposed apartments, there is perhaps an opportunity to submit a revised planning permission for additional apartments by reducing the floor area and no. of bedrooms within the proposed scheme, as granted, and by incorporating the vacant site to the rear.  

BER details

BER Rating:

BER No.: 800773970

Energy Performance Indicator: 786.36 kWh/m²/yr

  • REA O'Brien Collins

    REA O'Brien Collins (Drogheda)

    (041) 987 5444

Photo Gallery

Photo 1 of Market Square House, Irish Street, Ardee Photo 2 of Market Square House, Irish Street, Ardee Photo 3 of Market Square House, Irish Street, Ardee Photo 4 of Market Square House, Irish Street, Ardee Photo 5 of Market Square House, Irish Street, Ardee

Location

Visit www.realestatealliance.ie for further details.