REA Dawson (Tullow)

D'Israeli School, Bough, Rathvilly, R93 YC86

Detached House For Sale

SOLD

Print additional images & map (disable to save ink)

Photo 1 of D'Israeli School, Bough, Rathvilly

Telephone:

(059) 915 1142

View Online:

www.realestatealliance.ie/976820

Key Information

Address D'Israeli School, Bough, Rathvilly, R93 YC86
Style Detached House
Bathrooms 4
BER Rating
Status Sold
PSRA License No. 001015

Additional Information

Rea Dawson are proud to offer for Sale D’Israeli School, Bough,  Rathvilly, Co. Carlow. 

A stunning period former school situated on a minor public road just off the Carlow/Tullow/Hacketstown Road R726 in a tranquil rural setting within easy reach of Rathvilly Village, Baltinglass Town and Tullow and located in a rich farming area. 

The property possesses enormous potential, with both residential and commercial potential. Occupying a prime location close to the N81 main Enniscorthy, Tullow, Dublin Road, within easy reach of the M9 motorway at  Castledermot and 2kms of the picturesque village of Rathvilly and the Slaney River.

History

The period building was completed in 1826 and served as a school for local community until 1977 and in recent years has been used as a community hall. 

Beautifully constructed of old cut granite stone underneath a slate roof the property is comprised over 3 floors, with a number of old classrooms, offices, kitchen and stores.

Services:

Mains water, drainage by septic tank (septic tank pre 1963) and ESB are laid on and connected to the premises. Also available in the area is fibre broadband and waste collection every 2 weeks.

Title:

Held in fee simple free of rent

Held under folio CW12412F

Circa 0.37 Hectare or 0.91 Acre

The Accommodation Comprises:

Basement – floor area approximately 98 sq. mt.

West Shower Room: 7.43m x 3.612m or 15’6” x 11’10”

East Shower Room: 4.46m x 3.628m or 17’10” x 11’10"

West Store Room: 1.68 x 6.545 or 7’2” x 11’6”

East Store Room: 1.00m x 3.585m or 7’0” x 11’6”

West Cellar: 2.46m x 3.200m or 7’4” x 10’6”

East Cellar: 1.20m x 2.882m or 7’0” x 9’6”

Basement Room: 4.42m x 3.454m or 31’0” x 11’x4”

Ground Floor – floor area approximately 214.52 sq. mt.

West School Room: 0.38m x 12.190m or 2’0” x 40’0”

East School Room: 0.28m x 12.218m or 20’0” x 40’0”

West Store Room: 4.10m x 2.426m or 8’0” x 8’0”

East Store Room: 3.94m x 2.375m or 7’10” x 7’10”

West wc: 4.06m x 2.445m or 4’8” x 8’0”

East wc: 2.04m x 2.406m or 6’6” x 8’0”

West Entrance Hall: 3.95m x 3.332m or 7’10” x 11’0”

East Entrance Hall: 4.39m x 3.326m or 8’0” x 11’0”

Utility Room: 3.16m x 3.605m or 14’3” x 11’0”

Kitchen: 2.42m or 3.618m or 14’0” x 11’10”

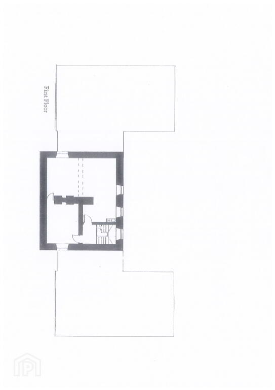
First Floor – floor area approximately 62.28 sq. mt.

Large Classroom: 2.45m x 7.584m or 23’9” x 24’10”

Small Classroom: 2.62m x 3.600m or 14’0” x 11’10”

Total Floor Area:  374.80 sq.mt.

Distances:                                                                                                                         

Rathvilly – 2kms                                                             

Baltinglass – 7kms                                                                    

Tullow – 11kms                                                                       

Carlow Town – 18kms                                                                 

Dublin City - 78kms                                                               

Just off the R726

Solicitor with carriage of sale

Roger McCormack, The Representatives Church Body, Church of Ireland House, Church Avenue, Rathmines, Dublin 6 - Tel:  01 4978422

BER details

BER Rating:

  • REA Dawson

    REA Dawson (Tullow)

    (059) 915 1142

Photo Gallery

Photo 1 of D'Israeli School, Bough, Rathvilly Photo 2 of D'Israeli School, Bough, Rathvilly Photo 3 of D'Israeli School, Bough, Rathvilly Photo 4 of D'Israeli School, Bough, Rathvilly Photo 5 of D'Israeli School, Bough, Rathvilly Photo 6 of D'Israeli School, Bough, Rathvilly Photo 7 of D'Israeli School, Bough, Rathvilly Photo 8 of D'Israeli School, Bough, Rathvilly Photo 9 of D'Israeli School, Bough, Rathvilly Photo 10 of D'Israeli School, Bough, Rathvilly Floorplan 1 of D'Israeli School, Bough, Rathvilly Floorplan 2 of D'Israeli School, Bough, Rathvilly Floorplan 3 of D'Israeli School, Bough, Rathvilly Floorplan 4 of D'Israeli School, Bough, Rathvilly

Location

Visit www.realestatealliance.ie for further details.