3 The Downs Liffey Hall, Newbridge
Back to Search results

3 The Downs, Liffey Hall, Newbridge, County Kildare , W12 AK37

Price €490,000
  • Bedrooms 4
  • Bathrooms 3
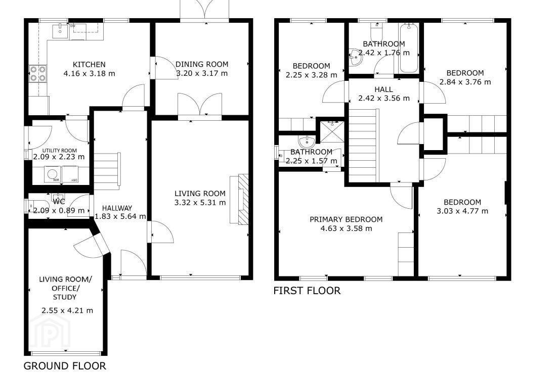
  • Size 134.78 m²
  • Ber Rating

At a glance...

  • Extends to 134.78 Sq. Metres / 1,451 Sq.Ft.
  • C2 rating.
  • Gas Central Heating.
  • Bright and spacious accommodation with an attractive layout, coving detail and flooring in perfect continuity between rooms.
  • Modern fully fitted Kitchen.
  • Superb family living opportunities including Open Plan access between front living room and dining room lending itself to entertaining for family events with perfect mix of indoor / outdoor living in summer months from patio door access to rear garden.
  • Utility Room with side property access / presses/ shelving / storage.
  • Separate front room/ additional reception room suitable for several uses including an Office, TV Room / Lounge / Treatment Room (Physiotherapist / Chiropodist , Counsellor etc / located beside downstairs bathroom ) or indeed as a 5th bedroom.
  • Fitted Wardrobes in all bedrooms.
  • Light fittings / lampshades and curtains included in sale.
  • Appliances included in sale include Fridge Freezer, Cooker / Hob / Extractor Fan, Washing Machine and Dryer.
  • Large attic with attic ladder (flooring in storage area).
  • Low maintenance Red Brick Exterior / Attractive entrance external porch area.
  • Large cobble lock driveway with shrubbery,foliage and potted plants / Huge parking potential from driveway and street parking.
  • Gated pedestrian side access on both sides from secured, modern and well-maintained gates
  • Overlooking Green Area.
  • Large rear garden ,maintenance free panel fencing on one side and well-maintained stoned landscaping area.
  • External Tap / Barna Shed.
  • Built in C.2000.
Read More

Description

* Superbly presented 4 Bedroom Detached Residence with additional living / reception room downstairs *
* Excellent location relative to town centre amenities *

Welcome to 3 The Downs, Liffey Hall ...REA Brophy Farrell have the absolute pleasure of presenting this large family home to the market.

This residence extends to approximately 134.78 Sq.Metres (1,451 Sq.Ft) and comprises a 4 bedroom detached residence with an additional reception downstairs excellently located in the highly sought after and attractive Liffey Hall development.

Liffey Hall is one of the most sought-after residential areas in Newbridge with location being a key feature. It is perfectly positioned on the town outskirts off the Athgarvan Road but within close proximity to the town centre with all its amenities particularly the National and Secondary Schools (St.Conleth's Infant School, St. Conleth’s and Mary's National School, Patrician Primary and Secondary School, Holy Family Secondary School and Newbridge College ).

No.3 itself is perfectly positioned occupying an enviable position overlooking a well - maintained green area in a cul-de -sac of only 12 houses.
It boasts of a large cobble lock driveway with parking for 2 cars in addition to street parking hugely important to someone looking to the future !
It offers superb family living opportunities through generous and well laid out accommodation including 4 generous bedrooms (one ensuite)and a large living room with open plan access to a dining room providing several family living opportunities and options for entertaining in Summer months with rear garden access thereon.
The living space has also been extended by an additional reception room downstairs off the entrance hallway providing additional options for use as a treatment room ( physiotherapist / beautician ) home office,gym,study,TV Room or indeed as a 5th bedroom. Another significant feature is the large utility room with separate side property access which offers extensive storage options.

The M7 / M8 / M9 interchange is easily accessible offering access to the Capital and Dublin International Airport in less than an hour's drive. There is also access to the South (Limerick / Cork and Waterford) thereon. The residence's proximity to the proposed Newbridge Southern Ring Road is an added advantage.
Other towns in proximity include Naas (approximately 10 KM) Kildare Town (approximately 10 KM ) and Kilcullen (approximately 6 KM).
Newbridge railway station also offers an excellent commuter service to Dublin while also serving the West and South and bus services are available from the Main Street.

Another huge benefit is the residence's proximity to the nearby shopping facility which includes supermarket (Centra), pharmacy, beauty services and restaurant. The Curragh plains are also practically on the doorstep perfect for walking and recreation!

Newbridge has developed into a large shopping town including Tesco, Dunnes Stores, Aldi and Lidl supermarkets.
Penneys and TK Maxx are also in residence and the famous Whitewater Shopping Centre includes some major shopping chains for example Marks and Spencer and Boots and also includes several restaurants and cinemas.
The town is also home to the Newbridge Silverware showrooms and museum. Local leisure and sports amenities include GAA, rugby, soccer, athletics, hockey, basketball, swimming, canoeing, gyms, dancing, golf and horse racing with the Curragh, Naas, and Punchestown racecourses close by.

There are also several creches, playschools, Montessori facilities, churches and restaurants.

This is an ideal opportunity to acquire a well-appointed home in a sought after and attractive location and early viewing is advised with sole selling agents REA Brophy Farrell.

Viewing by appointment only
The above particulars are issued by REA Brophy Farrell and while every care is taken in preparing particulars they do not hold themselves responsible for any inaccuracies.

Explore Kildare Kildare is best known as Thoroughbred County because of its many top studs and racecourses, but there's lots more to love about this area of Ireland. With Dublin as its neighbour, Kildare is one of Ireland's most affluent counties. It has boomed as a commuter town due to its proximity to the ca... Explore Kildare
PSRA Licence No: 001230

Get in touch

Use the form below to get in touch with REA Brophy Farrell (Newbridge) or call them on (045) 431 327

Please check you have entered all details correctly:

For Sale