This site uses cookies to store information on your computer
Read more
Back to Search results
Old Credit Union, South Quay, Newcastle West, County Limerick , V42 V578
Price On ApplicationAt a glance...
- Prime Location
- Located on N21
- Circa 158SQM
- Fitted out for Office space
Read More
Explore Limerick
Limerick is an Irish county unlike any other, as few areas can offer such a blend of city and country.
Situated beside the Shannon Estuary, Limerick is mainly covered in low-lying farmland and has some of the most picturesque villages, like Adare. At the same time it is dynamic with Limerick ci...
Explore Limerick
Description
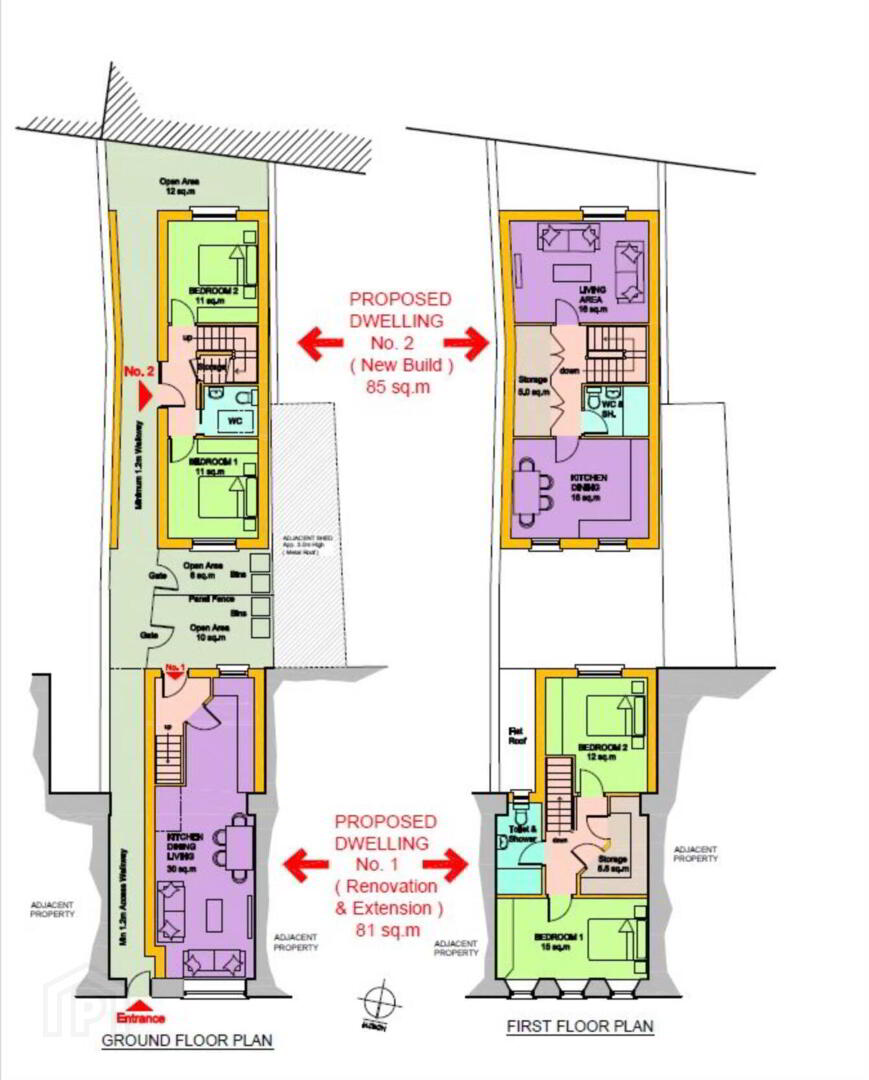
REA Dooley Group bring to the market this commercial premises known locally as "The Old Credit Union "which has recently been granted full planning permission for 2 x 2 Bedroom Apartments
The property is located on the N21 main Limerick to Tralee Road and extends to approx 158 SQM.
Ground floor consists of Entrance reception area, 3 offices, Waiting room, Kitchen and downstairs toilet.
Upstairs there is a large board room to the front of the property aswell as a second office with kitchen and upstairs toilet.
This is a prime location facing the river Arra in the town centre.
This would be an ideal opportunity for anyone seeking office/retail space and also offers the potential to be converted into living accommodation
what3words /// thud.engrossed.convection
Notice
Please note we have not tested any apparatus, fixtures, fittings, or services. Interested parties must undertake their own investigation into the working order of these items. All measurements are approximate and photographs provided for guidance only.
The property is located on the N21 main Limerick to Tralee Road and extends to approx 158 SQM.
Ground floor consists of Entrance reception area, 3 offices, Waiting room, Kitchen and downstairs toilet.
Upstairs there is a large board room to the front of the property aswell as a second office with kitchen and upstairs toilet.
This is a prime location facing the river Arra in the town centre.
This would be an ideal opportunity for anyone seeking office/retail space and also offers the potential to be converted into living accommodation
what3words /// thud.engrossed.convection
Notice
Please note we have not tested any apparatus, fixtures, fittings, or services. Interested parties must undertake their own investigation into the working order of these items. All measurements are approximate and photographs provided for guidance only.
You might also like…
PSRA Licence No: 003411
Get in touch
Use the form below to get in touch with REA Dooley Group (Newcastle West) or call them on (069) 61888