South Hill House & Farm South Hill, Delvin
Back to Search results

South Hill House & Farm, South Hill, Delvin, County Westmeath , N91 AK6X

Public auction Price On Application
  • Bedrooms 10
  • Bathrooms 10
  • Size 139 acres²
  • Ber Rating
Read More

Description

AN IMPORTANT HISTORIC ESTATE OCCUPYING A PRIME LOCATION ON THE WESTMEATH / MEATH BORDER

AUCTION

FRIDAY 27TH FEBRUARY 2026 AT 3PM

At The Property Exchange, Trim, Co. Meath and LSL online auctions

Pre Registration by 23rd February.

SOUTH HILL HOUSE AND FARM, DELVIN, CO. WESTMEATH

(Formerly St. Mary’s School)

Delvin 2 km Athboy 11km Mullingar 22 km Dublin 76 km

INCORPORATING A MAGNIFICENT COUNTRY HOUSE (11,000 SQ FT) , EXTENSIVE ADDITIONAL ACCOMMODATION (55,000 SQ FT) TOGETHER WITH FARMYARD, COTTAGE, GROUNDS AND A SUPERB BLOCK OF FARMLAND.

139 ACRES IN ONE OR MORE LOTS

 

DESCRIPTION

South Hill House occupies a site area of approximately 56 hectares (139 acres) which is predominantly in use as agricultural land. There are 8 buildings which also form part of the estate and incorporate a mixture of residential, medical, education and leisure uses. The buildings are all offered with the benefit of vacant possession. South Hill House & Farmyard are protected structures (NBHS REG 15401401/402).

 

LOT 1 SOUTH HILL HOUSE AND OUT OFFICES TOGETHER WITH FARMYARD ON C. 68 ACRES / 28 HECTARES.

The property is comprised in folio WH13260 and outlined in white on the map. South Hill House is approached over a tarmacadam drive flanked on both sides by lawned areas incorporating mature trees and shrubs, leading to a large forecourt parking and turning area in front of the house.

OUTSIDE Very briefly comprising an attractive court yard with a range of stone out offices with slate roofs, farmyard with separate access to the main N51 Athboy / Delvin road.

THE LANDS The gently undulating lands are laid out in a number of convenient divisions all under old pasture and are of excellent grazing / fattening quality. The lands benefit from extensive frontage to the N51.

LOT 2

An excellent block of agricultural land extending to 69 acres / 27.8 hectares being comprised in folio WH15837 and laid out in three divisions of productive land benefiting from extensive road frontage.

LOT 3

 A small parcel of land extending to about 2 acres / 0.8 hectares, fronting the main Athboy / Delvin road and opposite the main entrance gates to Lot 1.

LOT 4 

The entire South Hill House on c. 139 acres / 56 hectares.

LOCATION

Delvin is located in the northeast of county Westmeath. The village is situated approximately 20km northeast of Mullingar, 22km southwest of Kells, 31km west of Navan and 77 km north west of Dublin. Delvin is a service centre for the surrounding agricultural hinterland and has a population of 714 persons as recorded in the 2022

census. The village has a strong community spirit and supports a range of local amenities, including a sports and leisure centre, golf course, and walking paths. The locality is well supported by an established farming infrastructure with abbatoirs, contractors, merchants, Delvin Livestock Market and other service industries all close at hand.

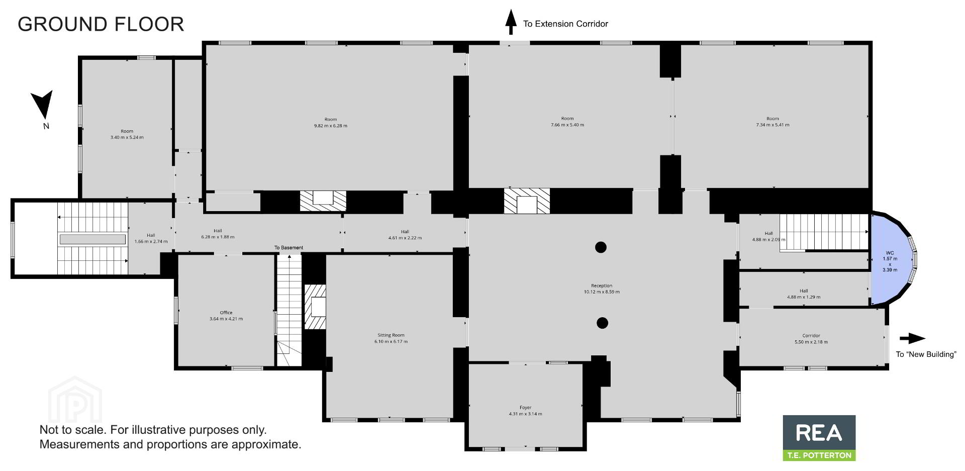
South Hill House is an imposing Georgian three storey over basement 5 bay house designed by prominent architect William Farrell, while the interior plasterwork may be attributed to the Danish artist Thorvaldsen. A Doric porch flanked by three bay single storey wings on either side of Ashlar limestone construction was later added to enhance

the façade. The property still retains all the charm and dignity of the period and the gracious beautifully proportioned accommodation is enhanced by a number of particularly fine features. Ornate richly moulded gilt plasterwork to the principal rooms, beautiful chimney pieces in the main reception rooms, sash windows having classic six over six panes with slim glazing bars and shutters, three storey staircase having featured grand bow windows to mention just a few of the features of South Hill House. The accommodation is arranged on three floors over basement as per floor plans.

HISTORICAL NOTE 

South Hill House owes it origins to the early 19th century having been constructed in or about 1810 for the Tighe family who originated from Lincolnshire, England. The Chapmans of nearby Killua Castle were a prominent Anglo Irish landowning family who intermarried with the Tighe family. Thomas Robert Tighe Chapman was born in 1846 and lived at South Hill House with his wife Edith Boyd-Rochford with whom he had 4 daughters. A governess Sarah Mader (known as Lawrence) from Durham in England was employed to look after their children. Thomas Tighe Chapman eloped with the governess to North Wales where Thomas Edward (T E ) Lawrence was born in 1888. Adopting the name Lawrence to avoid any scandal, the couple never married and moved to Scotland, Normandy, eventually settling in Oxford. T E Lawrence became known as ‘Lawrence of Arabia’ for his role in the Arab revolt during World War 1. In 1962 noted film maker David Lean made a film ‘Lawrence of Arabia’ based on the life of T E Lawrence. The Sisters of Charity acquired South Hill in 1952 and developed it into a special school known as St. Mary’s South Hill.

TERMS & STRUCTURE

TITLE: 

Assumed to be Freehold with vacant possession upon completion.

BER

D1 G Please note South Hill House is a Protected Structure and therefore exempt from a BER rating.

FIXTURES & FITTINGS

Only those fixtures & fittings specifically mentioned in these particulars are included in the sale.

DIRECTIONS 

Eircode N91 AK6X

VIEWING 

Residence and out offices by prior appointment with the joint selling agents.

Lands can be inspected at any reasonable hour.

JOINT AGENTS:

REA T E Potterton

Elliott Potterton

E: elliott@reatepotterton.ie

T: +353 83 856 8526

 

Cushman Wakefield

Ryan Murphy

E: ryan.c.murphy@cushwake.com

T: +353 87 441 9085

SOLICITOR 

Ciaran O’Shaughnessy PF O’Reilly E: ciaran.oshaughnessy@pforeilly.ie T: 01 679 3565

 

 



Explore Meath County Meath is rich in history and famous for many different reasons. It is the county where the High King of Ireland sat at the Hill of Tara. It is also home to Newgrange, a Neolithic site which pre-dates Stonehenge. It is where the famous book of kells, which resides in trinity college, comes... Explore Meath
PSRA Licence No: 001255

Get in touch

Use the form below to get in touch with REA TE Potterton (Trim) or call them on (046) 943 1391

Please check you have entered all details correctly:

For Sale