This site uses cookies to store information on your computer
Read more
Back to Search results
Explore Limerick
Limerick is an Irish county unlike any other, as few areas can offer such a blend of city and country.
Situated beside the Shannon Estuary, Limerick is mainly covered in low-lying farmland and has some of the most picturesque villages, like Adare. At the same time it is dynamic with Limerick ci...
Explore Limerick
The Glebe Newcastle West, County Limerick , V42 RW82
Price €370,000At a glance...
- Turn Key Property
- Fully Floored
- 133SQM Property
- Fitted Kitchen
- Master Bedroom En Suite
Read More
Description
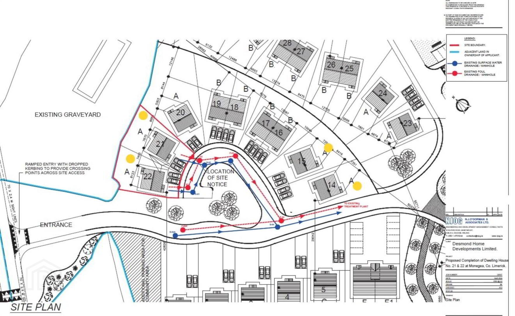
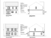
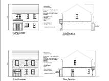
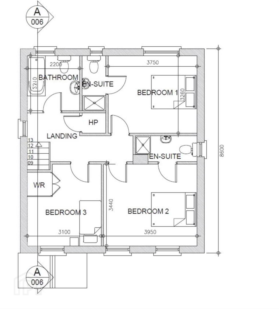
REA Dooley group are delighted to bring to the market 4 x A Rated 3 Bedroom Detached Houses in the hugely popular estate of The Glebe in Monagea.
This development sees the completion of 2 only 3 bedroom Detached properties to be finished in turn key condition. (Numbers 21 & 22)
Each unit will be timber framed A rated and will be 133SQM in size with Entrance Hallway, Sitting Room, Kitchen/Dinining, Utility and upstairs 3 spacious bedrooms Master En Suite and Main Bathroom. All houses will be finished with flooring, painting and fitted kitchen as well as appliances.
Located within The Glebe estate these houses are walking distance to the local primary school, while the town of Newcastle West is a 5 minute drive.
This development qualifies for the Help To Buy and First Home Scheme.
For Further Detail please contact Sole Agents REA Dooley Group 069-61888
Notice
Please note we have not tested any apparatus, fixtures, fittings, or services. Interested parties must undertake their own investigation into the working order of these items. All measurements are approximate and photographs provided for guidance only.
This development sees the completion of 2 only 3 bedroom Detached properties to be finished in turn key condition. (Numbers 21 & 22)
Each unit will be timber framed A rated and will be 133SQM in size with Entrance Hallway, Sitting Room, Kitchen/Dinining, Utility and upstairs 3 spacious bedrooms Master En Suite and Main Bathroom. All houses will be finished with flooring, painting and fitted kitchen as well as appliances.
Located within The Glebe estate these houses are walking distance to the local primary school, while the town of Newcastle West is a 5 minute drive.
This development qualifies for the Help To Buy and First Home Scheme.
For Further Detail please contact Sole Agents REA Dooley Group 069-61888
Notice
Please note we have not tested any apparatus, fixtures, fittings, or services. Interested parties must undertake their own investigation into the working order of these items. All measurements are approximate and photographs provided for guidance only.
BER details
BER Rating:
BER No.: 118617158
Energy Performance Indicator: Not provided
PSRA Licence No: 003411
Get in touch
Use the form below to get in touch with REA Dooley Group (Newcastle West) or call them on (069) 61888