This site uses cookies to store information on your computer
Read more
1a Raheen Drive, Ballyfermot, Dublin, D10 WT73
At a glance...
- Marble flooring
- New build
- Three story
Description
Description
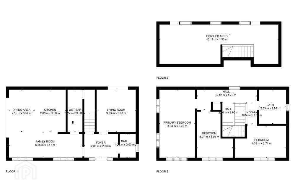
REA MCGEE ARE PLEASED TO PRESENT THIS NEWLY BUILT THREE STORY DETACHED HOUSE FOR SALE
Accommodation briefly comprises entrance hallway, open plan kitchen and dining area(with marble flooring throughout), living room, bathroom, three double bedrooms, bathroom and a large attic space with great potential
This property is close to a host of amenities and facilities in Ballyfermot. Bus routes are close to hand into the city centre and the train station (Park West) is within a ten minute walk which goes to Connolly and Hueston station.
Viewing is highly recommended, by appointment only.
Please reply by email with your phone number or call us on 014057700 to arrange a viewing!
Features
-Marble flooring
-New build
-Three story
BER Details
BER: A3
You might also like…
Get in touch
Use the form below to get in touch with REA McGee (Dublin West) or call them on (01) 405 7700