2761 Corra Choill Park, Prosperous
Back to Search results

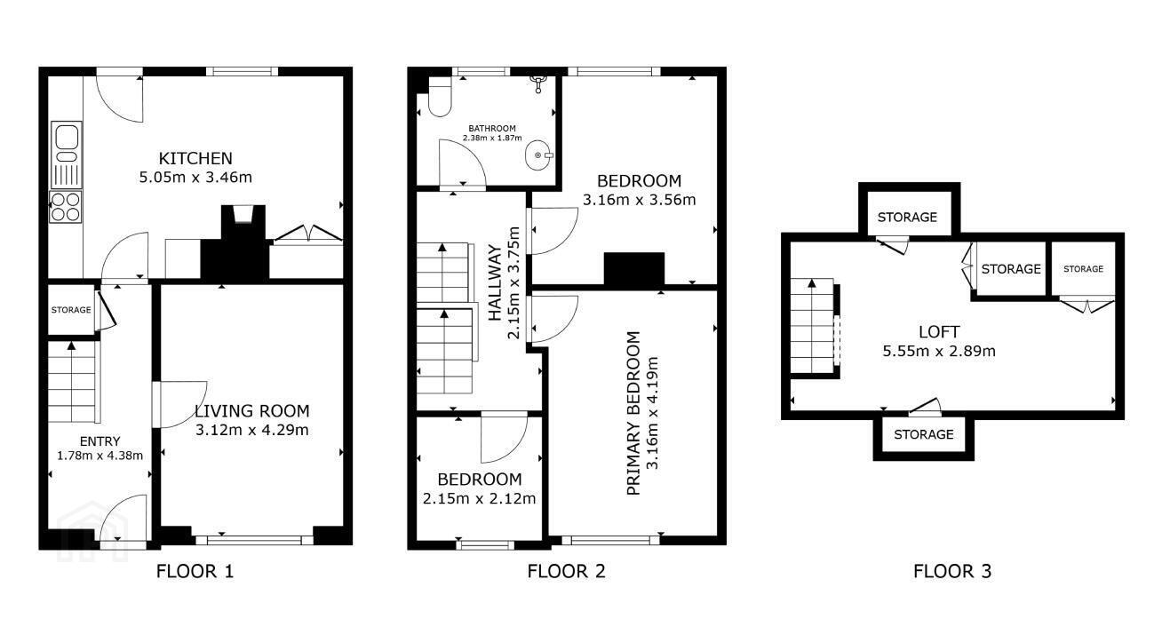
2761 Corra Choill Park Prosperous, County Kildare , W91 FH7N

  • Bedrooms 3
  • Bathroom 1
  • Size 77.76 m²
  • Ber Rating

At a glance...

  • Extends to 77.76 Sq. Metres / 837 Sq. Feet ( Excluding Attic ) .
  • Located in established and well-maintained town centre estate close to all town amenities.
  • Oil fired central heating.
  • Large rear garden offering several opportunities subject to planning.
  • Concrete Shed.
  • Front Driveway with street parking also available.
  • Overlooking Green Area.
  • Attic storage.
  • Built in C.1975.
Read More

Description

* 3 Bedroom Mid-Terrace Residence. *

REA Brophy Farrell have the pleasure of presenting this 3 Bedroom mid -terraced property to the market.
2761 Corra Choill is located in an established and well maintained town center estate and includes living / sitting room, kitchen ,3 bedrooms and bathroom. There is also attic storage accessible from a staircase off the 2nd floor.
Location is a key factor as it is positioned in a small cul-de-sac in Corra Choill off the R408 Maynooth road and within a 5 minutes' walk of the town centre and the main R403 Clane Road crossroads with Dowlings Pub / Restaurant / Prosperous Pitch and Putt Club, Prosperous Lawn Tennis Club, Coffee shop and Restaurants, Church, School ( Scoil an Linbh Iosa) and Pre-school ( Little Scholars ) located thereof.

Local supermarkets include Londis and Spar and other towns in proximity include Clane (approximately 6 KM) with Dunnes Stores /Aldi / Tesco / Choice, Maynooth (approximately15KM ) ,Allenwood (approximately 7KM ),Caragh (approximately 8KM ) ,Sallins (approximately 9KM) and Naas ( approximately 12 KM ).
Dublin city and suburbs are easily accessible via a frequent town bus service and train services from Sallins with the property providing easy access to both the M4 and M7 motorways.

Other local attractions in the area include the Lullymore Heritage and Discovery Park and the Kildare Maze.

While the property requires modernization. it offers a lot of potential, and it boasts of a large rear garden with several opportunities subject to planning. There is also a large front driveway with street parking also available and is ideally suited to 1st time buyers or anyone seeking to downsize.

Viewing is by appointment with sole selling agents REA Brophy Farrell.

Viewing by appointment only.
The above particulars are issued by REA Brophy Farrell and while every care is taken in preparing particulars they do not hold themselves responsible for any inaccuracies.

Explore Kildare Kildare is best known as Thoroughbred County because of its many top studs and racecourses, but there's lots more to love about this area of Ireland. With Dublin as its neighbour, Kildare is one of Ireland's most affluent counties. It has boomed as a commuter town due to its proximity to the ca... Explore Kildare
PSRA Licence No: 001230

Get in touch

Use the form below to get in touch with REA Brophy Farrell (Newbridge) or call them on (045) 431 327

Please check you have entered all details correctly:

For Sale