49 Seskin View Road Tallaght, Dublin

Share with a friend

Please check you have entered all details correctly:

Back to Search results

49 Seskin View Road, Tallaght, Dublin, D24 K29V

  • Bedrooms 3
  • Bathroom 1
  • Size 90 m²
  • Ber Rating
Read More

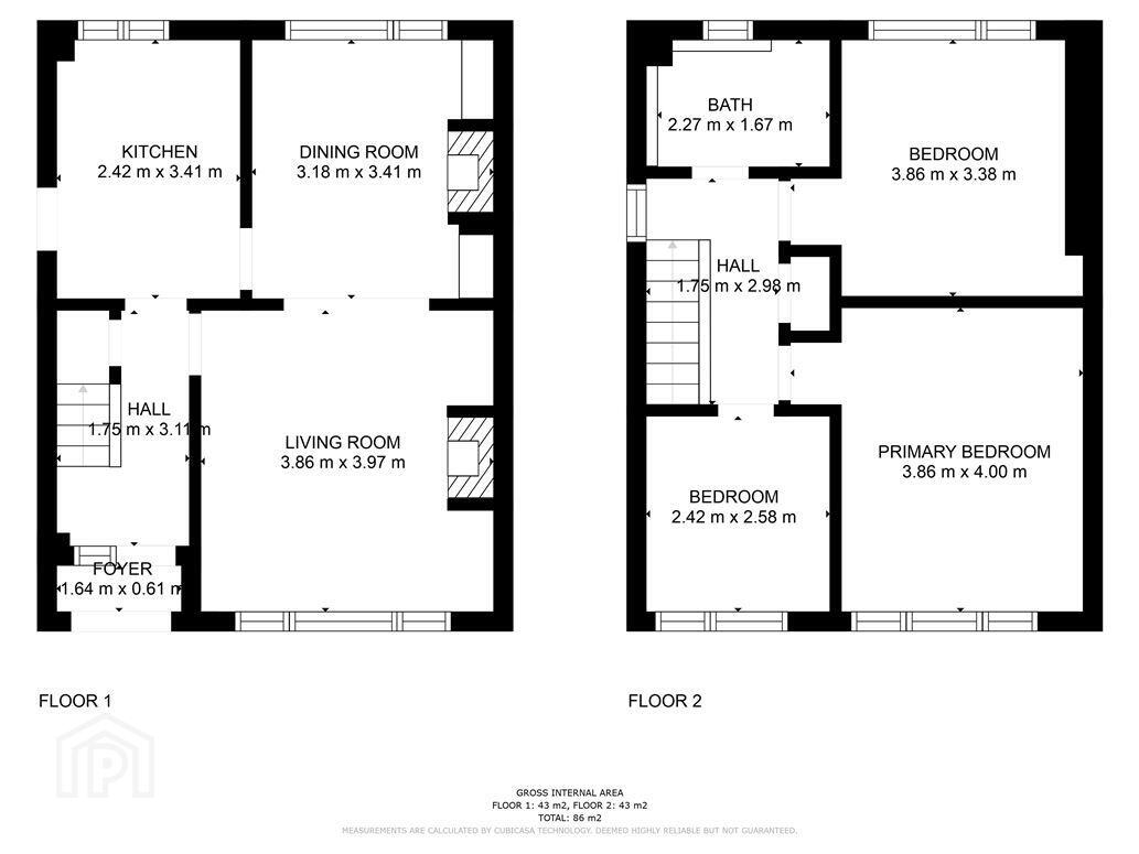
Description

REA MCGEE are pleased to present this fine 3 bedroom semi-detached home to the local sales market.

Accommodation briefly comprises entrance hallway with a large living room to the right. A separate dining room and kitchen to the rear.
Upstairs boasts 3 large double bedrooms and main bathroom.

There is a large garden to the rear and sizeable space to the side, ideal for development.

Viewing is highly recommended, by appointment only. Please email justin@reamcgee to arrange a viewing!

Living room 3.97m x 3.86m
Dining room 3.41m x 3.18m
Kitchen 3.41m x 2.42m
Master bedroom 4m x 3.86m
Bedroom 2 3.86m x 3.38m
Bedroom 3 2.58m x 2.42m
Main bathroom 2.27m x 1.67m

BER details

BER Rating:

BER No.: 115930513

Energy Performance Indicator: 343 kWh/m²/yr

Explore Dublin County Dublin is situated on the east coast of Ireland around Dublin bay. Although it is Ireland's third smallest county, Dublin City is Ireland's capital and the county hosts nearly a third of the country's population. Dublin city itself is bursting with diversity and has attracted multination... Explore Dublin
PSRA Licence No: 002939

Get in touch

Use the form below to get in touch with REA McGee (Dublin West) or call them on (01) 405 7700

Please check you have entered all details correctly:

For Sale