This site uses cookies to store information on your computer
Read more
Sale Agreed
Back to Search results
Coolcaum, Churchtown, Mallow, County Cork , P51 T6DK
At a glance...
- Benefit of full planning permission ref 25/04063
- Standing on a generous site
- Excellent potential
- Road frontage
- Septic tank
- Ideal redevelopment project
- Located 4.2 km from Churchtown village
- Within easy commute of Cork and Limerick via N20
Read More
Explore Cork
Known as the "Rebel County", Cork is the largest county in Ireland and has given us some of Ireland's most famous sons including Michael Collins and Roy Keane.
The cosmopolitan Cork City is packed with bustling coffee shops, vibrant galleries, lively pubs and not least of all its own brewery. T...
Explore Cork
Description
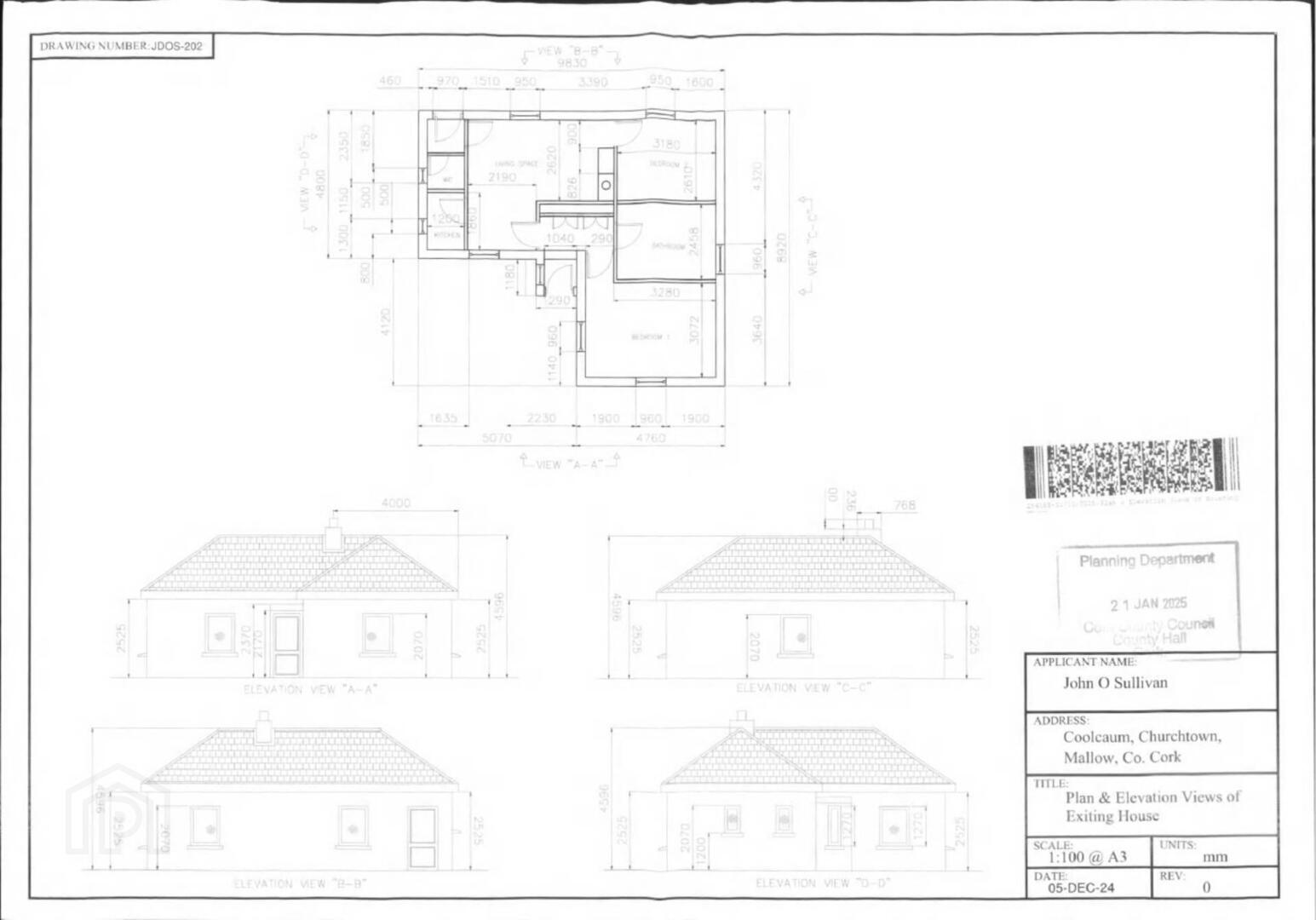
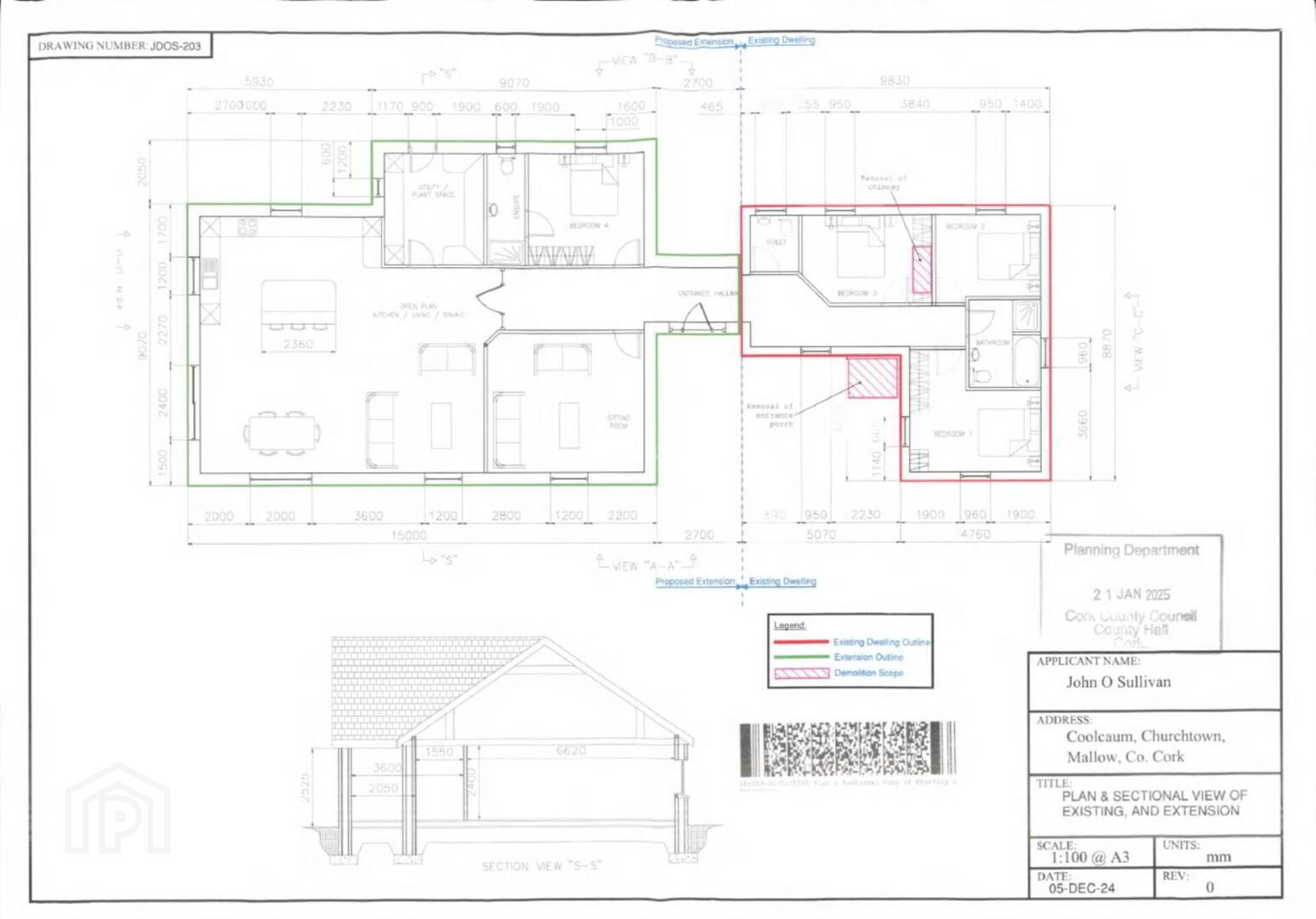
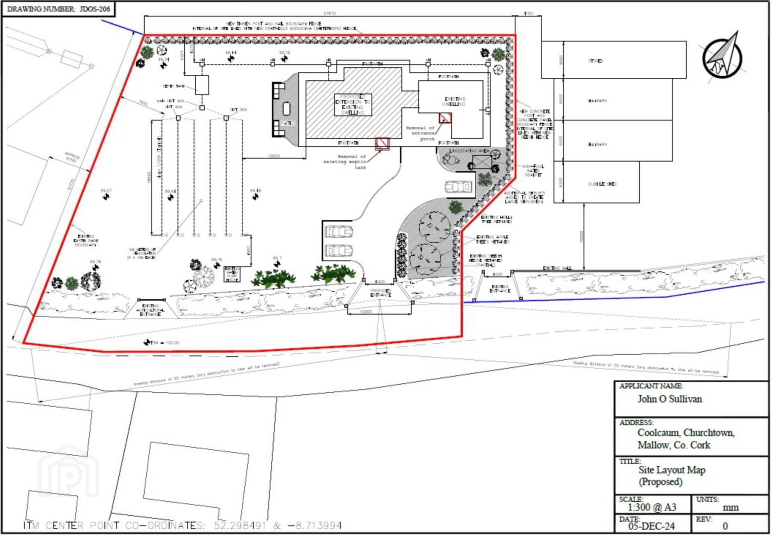
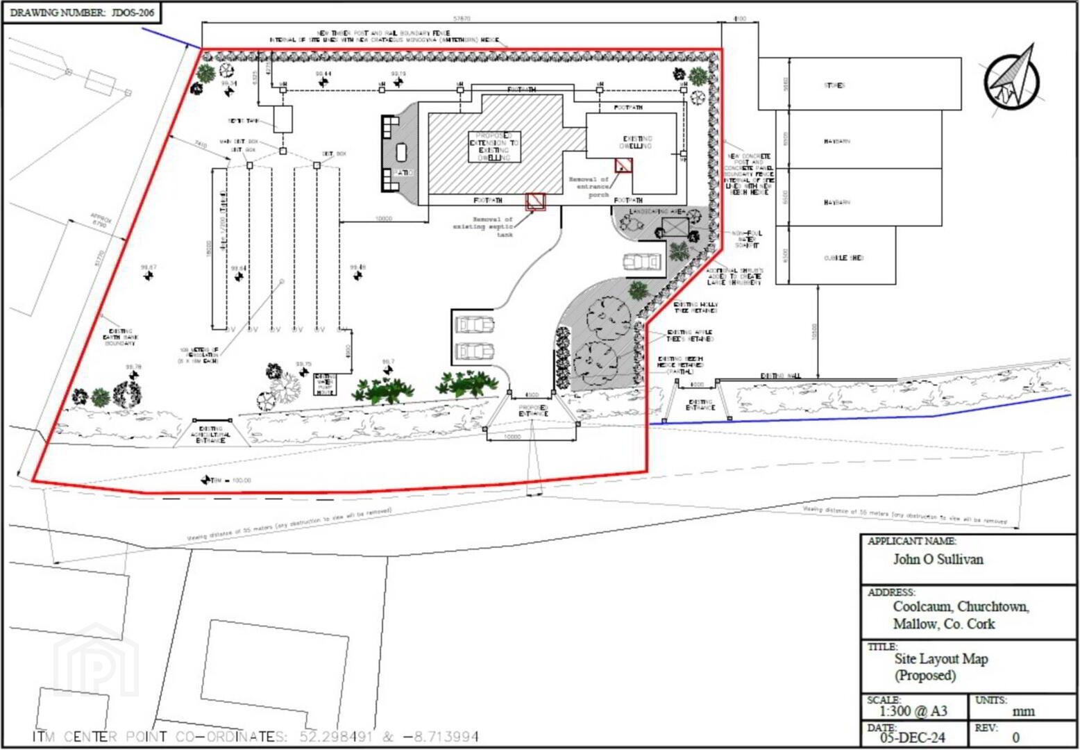
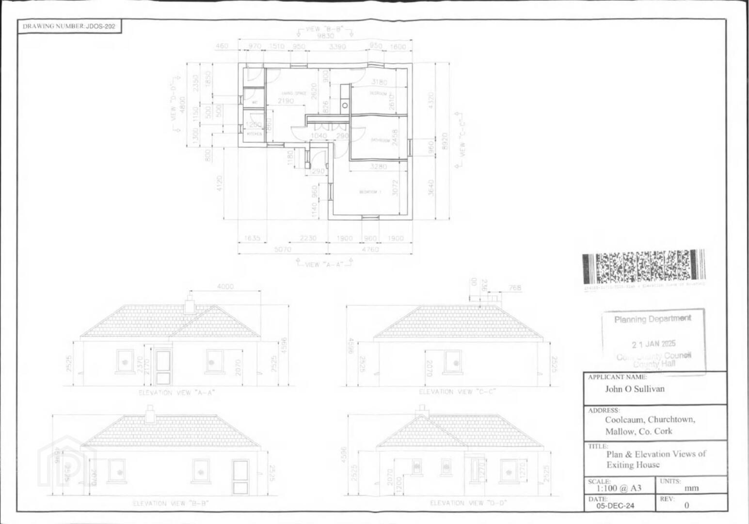
REA Dooley Group bring to the market this detached single storey cottage set on a generous site with the benefit of full planning permission.
**Eligible for the derelict grant of €70,000, and up to €30,000 SEAI grants**
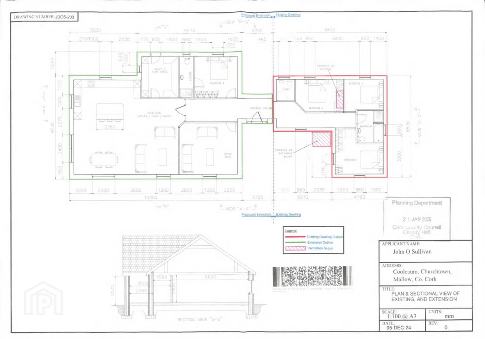
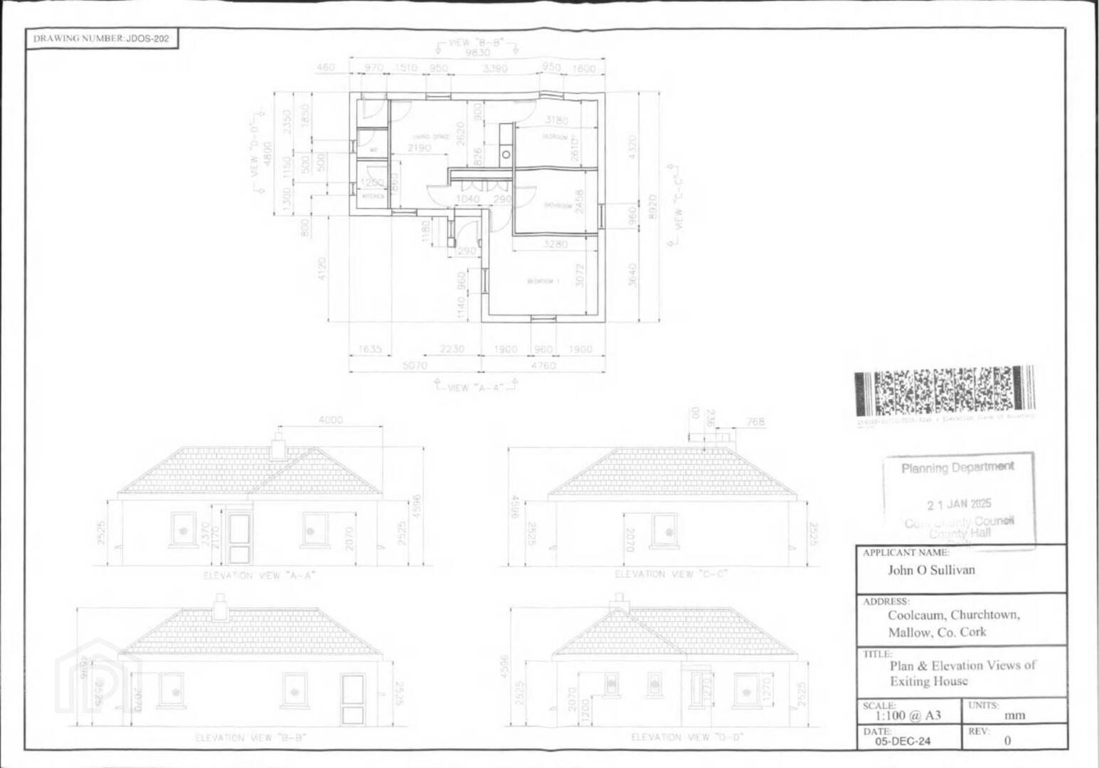
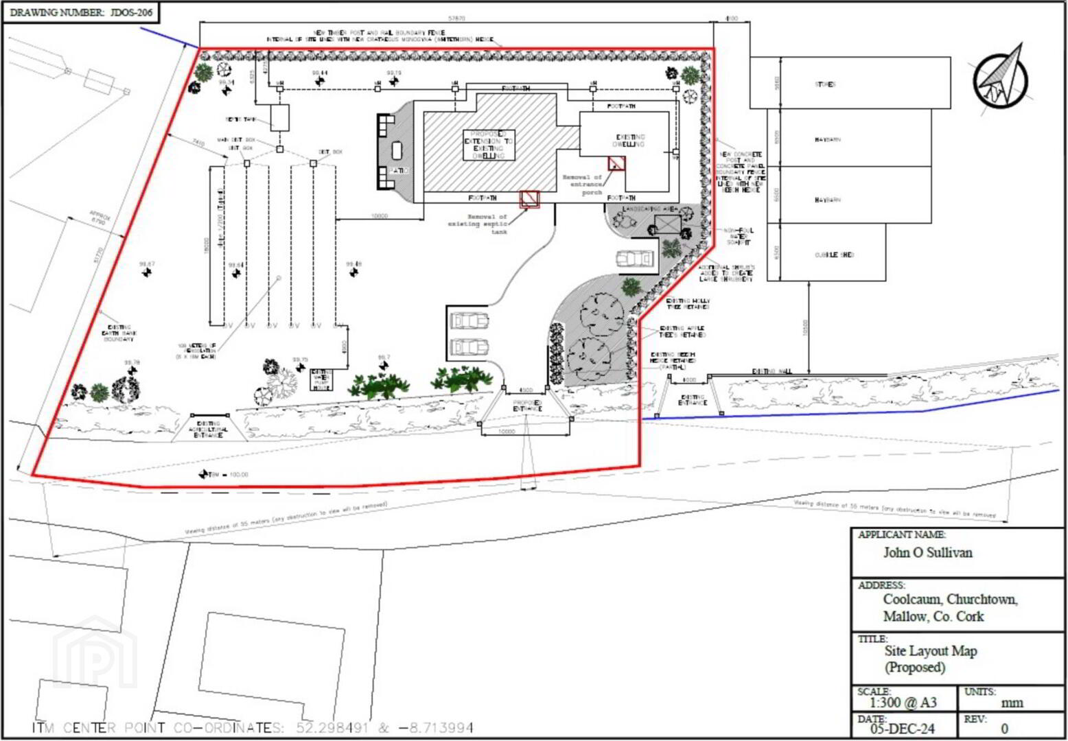
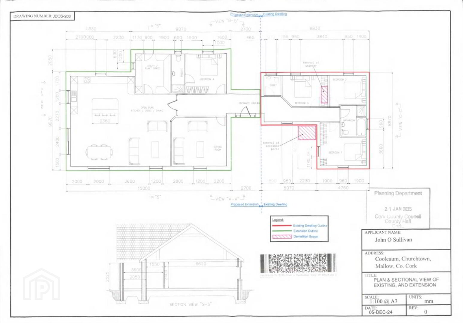
The property has the benefit of full planning permission under ref 25/04063 to construct a single storey extension to the side of the existing dwelling house, demolition of existing entrance porch, demolition of existing chimney, removal of existing septic tank, Installation of new septic tank and associated percolation area. Construction of new vehicular entrance and all associated site works.
The site has excellent road frontage, lined with mature trees and there is the option to make the site smaller.
The property is located just a short distance from the historic village of Churchtown and is within easy commute of both Cork and Limerick via the N20. Churchtown village offers the everyday essentials, while nearby Charleville, Mallow and Buttevant are all within commuting distance providing further services such as supermarkets, medical and recreational facilities along with bus and rail public transport.
This is an exceptional opportunity for those seeking to design and build their dream home in a peaceful, rural setting.
Directions
P51 T6DK
Notice
Please note we have not tested any apparatus, fixtures, fittings, or services. Interested parties must undertake their own investigation into the working order of these items. All measurements are approximate and photographs provided for guidance only.
**Eligible for the derelict grant of €70,000, and up to €30,000 SEAI grants**
The property has the benefit of full planning permission under ref 25/04063 to construct a single storey extension to the side of the existing dwelling house, demolition of existing entrance porch, demolition of existing chimney, removal of existing septic tank, Installation of new septic tank and associated percolation area. Construction of new vehicular entrance and all associated site works.
The site has excellent road frontage, lined with mature trees and there is the option to make the site smaller.
The property is located just a short distance from the historic village of Churchtown and is within easy commute of both Cork and Limerick via the N20. Churchtown village offers the everyday essentials, while nearby Charleville, Mallow and Buttevant are all within commuting distance providing further services such as supermarkets, medical and recreational facilities along with bus and rail public transport.
This is an exceptional opportunity for those seeking to design and build their dream home in a peaceful, rural setting.
Directions
P51 T6DK
Notice
Please note we have not tested any apparatus, fixtures, fittings, or services. Interested parties must undertake their own investigation into the working order of these items. All measurements are approximate and photographs provided for guidance only.
PSRA Licence No: 003411
Get in touch
Use the form below to get in touch with REA Dooley Group (Charleville) or call them on (063) 30884