Glenview, Nurney
Back to Search results

Glenview Nurney, County Carlow , R93 VK11

  • Bedrooms 6
  • Bathrooms 2
  • Ber Rating
Read More

Description

Glenview, Nurney, Co. Carlow R93VK11

Stunning 6-Bed Detached Residence on circa 1.5 Acres
For Sale by Private Treaty

REA Dawson are delighted to offer for sale this beautiful detached residence with separate annex, superbly positioned on a stunning elevated site enjoying commanding views over the South Carlow countryside.

This exceptional property comes to the market in immaculate condition throughout, boasting many additional features. Ideally located close to Nurney village, just a 10-minute drive from Bagenalstown and 15 minutes from Carlow town, it offers the perfect blend of peaceful rural living with excellent accessibility.

Constructed with a lime plaster finish and natural slate roof, the residence offers bright, spacious accommodation including two elegant reception rooms, a well-appointed kitchen, sunroom, and six bedrooms arranged over the first and second floors.

Special Features

Standing on 1.5 acre site with panoramic views

Gravel drive

LPG fired under floor heating

Security gates

14 solar panels

EV charger

Water softener system

 Reverse osmosis system

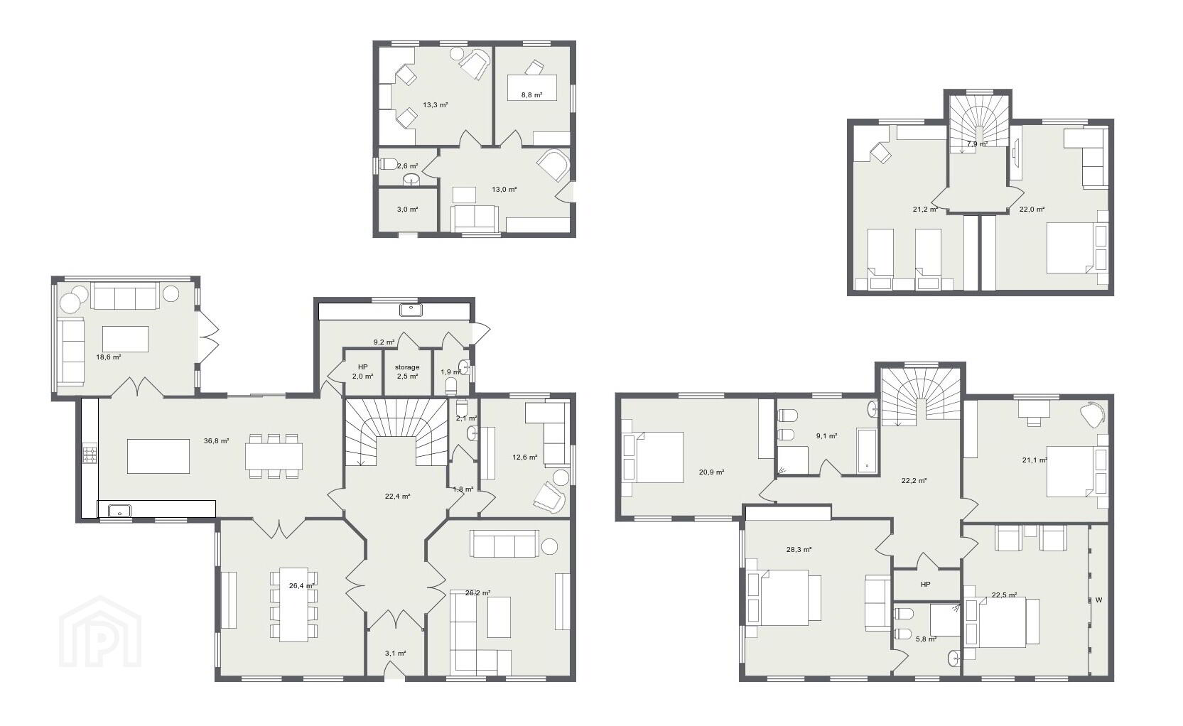
Accommodation comprises:

Porch                      1.83 x 1.52            double doors to hallway, coving, tiled floor, dado rail

Hall                         7.26 x 2.44            tiled floor, coving, dado rail

Kitchen/Diner         8.84 x 4.57            fitted solid oak kitchen with wall & floor units, island unit, range master cooker, double doors to dining/sunroom, patio doors to rear garden

Utility                      3.96 x 1.83            fitted units, sink, plumbed for washing machine, closet, tiled floor

Dining Room          5.38 x 5.13            fireplace, coving, double doors to kitchen & hallway

Sitting Room          5.18 x 4.88            marble fireplace, coving, double doors to hallway

Sun Room              4.85 x 3.96            tiled floor, patio doors to rear

Family Room          4.22 x 3.8               fireplace, coving

Guest WC               1.83 x 1.22            wc, whb, tiled wall & floor

Guest WC               1.68 x 1.24            wc, whb, tiled wall & floor

First Floor:

Stairs & landing    1.83 x 1.83           window, dado rail, carpet

Landing                  3.02 x 1.96            hot press, dado rail, carpet

Bedroom No. 1     5.77 x 5.33            timber floor,

Ensuite                                                shower, wc, whb, bidet, fully tiled

Bedroom No. 2     5.36 x 5.00            timber floor

Bedroom No. 3     5.18 x 4.27            timber floor

Bedroom No. 4     5.03 x 4.17            timber floor

Bathroom              3.45 x 2.82            wc, whb, bidet, bath, electric shower, fully tiled                         

Attic Rooms:

Bedroom No. 5     5.79 x 4.27            timber floor,

Bedroom No. 6     5.79 x 4.27            timber floor

OUTSIDE:

Garage – converted into 4 rooms

Room No. 1           2.90 x 2.31                            coving

Room No. 2           3.63 x 2.74                            coving

Room No. 3           4.01 x 3.66                            coving

Room No. 4           2.13 x 1.22                            wc, whb,

Services:

Septic tank, bored well,

Directions:

From Carlow town take the Wexford road continuing to the Fight Cocks pub, taking immediately right turn, continue along this road for approximately 2 miles, the property is on the right hand side.

Viewing strictly by appointment only

BER details

BER Rating:

BER No.: 100475334

Energy Performance Indicator: 119.3 kWh/m²/yr

Explore Carlow County Carlow is the second smallest county in Ireland, but it is full of big things to enjoy. Renowned for its beautiful Carlow Garden Trail, this green fingered county also boasts wild gardens at Altamont house and a multi-sensory, therapeutic garden near Carlow town - the Delta Sensory Garden... Explore Carlow
PSRA Licence No: 001015

Get in touch

Use the form below to get in touch with REA Dawson (Tullow) or call them on (059) 915 1142

Please check you have entered all details correctly:

For Sale