Market Square House, Irish Street, Ardee

Share with a friend

Please check you have entered all details correctly:

Back to Search results

Market Square House, Irish Street Ardee, County Louth , A92 K8FP

Asking price €625,000
  • Ber Rating
Read More

Description

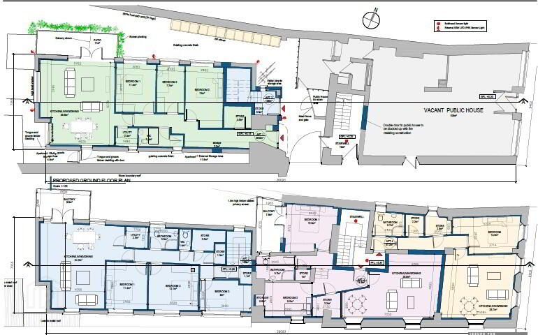
Landmark Town Centre Investment  / Redevelopment Property Ground Floor Commercial & FPP 4 no. large Apartments.

THE PROPERTY – “READY TO GO” INVESTMENT / REDEVELOPMENT OPPORTUNITY

Well-located substantial two storey town centre property occupying a prominent corner position at Market Square. Formerly a licensed premises with restaurant use overhead, this property is vacant and may benefit from the Vacant Property Refurbishment Grant (Croí Cónaithe Towns Fund). As per Planning Ref 2560052, full planning permission was granted on 15.09.2025 to refurbish and secure change of use of the property to provide 4 no. large apartments in addition to the ground floor commercial unit at the front of the building. The total site area of the property is approx. 0.185 hectare / 0.457 acres and the entire is zoned B1 – Town or Village Centre under the terms of the current Ardee Development Plan 2021 – 2027. 

PROPOSED SCHEME:

Ground Floor Commercial: approx 109 sqm / 1,173 sq ft

Ground Floor Apartment No 1 (3 bed): approx 96.9 sqm / 1,043 sq ft

First Floor Apartment No 2 (3 bed): approx 109 sqm / 1,173 sq ft

First Floor Apartment No 3 (2 bed): approx 74.6 sqm / 803 sq ft

First Floor Apartment No 4 (3 bed): approx 57.2 sqm / 616 sq ft

Vacant site (zoned B1) to rear offering potential for further development.

POTENTIAL:

In this instance, given the size of the proposed apartments, there is perhaps an opportunity to submit a revised planning permission for additional apartments by reducing the floor area and no. of bedrooms within the proposed scheme, as granted, and by incorporating the vacant site to the rear.  

BER details

BER Rating:

BER No.: 800773970

Energy Performance Indicator: 786.36 kWh/m²/yr

Explore Louth The "Wee County", County Louth, may be the smallest county in Ireland but the area is rich in folklore with myths and tales about the brave warrior Cu Chulainn, the Brown Bull of Cooley, Fionn MacCumhaill and the evil Queen Medbh. It is also protected under the European Habitats Directive as an ... Explore Louth
PSRA Licence No: 003766

Get in touch

Use the form below to get in touch with REA O'Brien Collins (Drogheda) or call them on (041) 987 5444

Please check you have entered all details correctly:

For Sale